~ゆったりとした時間が流れます~
スクロールできます


| 価格 | ASK万円 |
|---|---|
| 管理費など | – |
| 敷地面積 | 180.19㎡(約54.50坪) |
| 間取り | 3LDK |
| 築年月 | 2026年5月完成予定 |
| 延床面積 | 148.64m2 |
| 所在地 | 鎌倉市七里ガ浜東 |
| 交通 | 江ノ島電鉄線【七里ガ浜】駅 徒歩19分 |
お問合せ・見学予約はこちらから
見学予約はもちろん、疑問点や不明点などがあれば、お気軽にお問合せください。
理想のライフスタイルを実現するためのサポートをさせていただきます。
TEL:0467-39-5305
営業時間 10:00〜19:00(定休日:水曜日)
担当者からのコメント
鎌倉の1、2を争う高級分譲地七里ガ浜のデザイナーズ新築戸建のご紹介です!
七里ガ浜は多くの著名人が住む高級住宅街。
その中でも海が見える好立地の物件です。
七里ガ浜東の中でも海から離れた山側に本物件はございます。
車通りの少ない落ち着いた場所で、バルコニーからは湘南の海を見下ろせる場所です。
また、七里ガ浜東内にはスーパーとドラッグストアがあることや、
有名なお食事処などもあることなども人気な点の1つです。
建売とは思えない仕様をおしげもなく採用しております。
鎌倉のゆったりとした生活を味わってみてはいかがでしょうか。
是非ご検討ください。
物件の写真
外観
スクロールできます


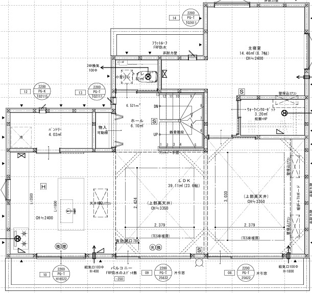
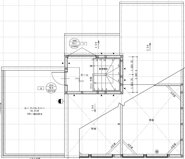
間取り図
スクロールできます



パース
スクロールできます







室内
スクロールできます


バルコニー・眺望
スクロールできます




全面道路
スクロールできます

所在地
お問合せ・見学予約はこちらから
見学予約はもちろん、疑問点や不明点などがあれば、お気軽にお問合せください。
理想のライフスタイルを実現するためのサポートをさせていただきます。
TEL:0467-39-5305
営業時間 10:00〜19:00(定休日:水曜日)
物件情報詳細
| 建物名 | 鎌倉市七里ガ浜東 新築戸建 |
|---|---|
| 間取り | 3LDK |
| 利回り | – |
| 建物/階 | 2階建 |
| 年間予定賃料収入 | – |
| 建物構造 | 木造2階建 |
| 総戸数 | 全1棟 |
| 引渡し | 相談 |
| 現況 | 建築中 |
| 建築確認番号 | 第25UDI1K建00759号 |
| 取引形態 | 媒介 |
| 管理形態/方式 | – |
| 備考 | – |
物件のこだわりと設備・条件
| 設備 | 公営水道・公共下水・都市ガス |
|---|---|
| 特徴 | オーシャンビュー デザイナーズ戸建 |
| ペット | OK!! |
| リフォーム/リノベーション | – |
| バルコニー | 有り |
| 駐車場 | カースペース有り |
| 最寄りサーフポイント | 七里ガ浜 |
| 学区 | 七里ガ浜小学校、腰越中学校 |
※リノベーション 既存の建物に対して、用途や機能を変更するなど、時代に即した大規模な改修工事を行い、「性能」「機能」価値を向上させること。
土地情報
| 敷地面積 | 180.19㎡(約54.50坪) |
|---|---|
| 用途地域 | 第一種低層住居専用地域 |
| 建蔽率 | 50% |
| 容積率 | 80% |
| 向き | 北東向き |
| 土地権利 | 所有権 |
| 国土法 | – |
お問合せフォーム
気になる物件がある方や物件を実際に見たい方は、
・電話
・お問合せフォーム
・LINE
のいずれかから、お気軽にお問合せください。
また、「希望条件に合った物件を紹介してほしい」といったご相談も受け付けております。
おすすめの波 – ieシリーズの物件
湘南波乗り不動産のノウハウを集結して、注文住宅のクオリティーを建売で実現した「波 -ie」。
ラグジュアリーでありながら、家族が安らぎ笑顔になる空間は当たり前。家のどこを見渡しても特別な空間が存在し、心地よい風や光を感じられる。そんな非日常を、日常にできる住宅です。
湘南で理想のライフスタイルを実現したいなら、ぜひご検討ください。






-1024x536.png)







